_

Продажа проекта апарт-отеля

Святи Влас, Болгария
ID: К2405002
€10 332 500,00 € за объект
Площадь: 17 665 м²
Нет в наличии
Описание

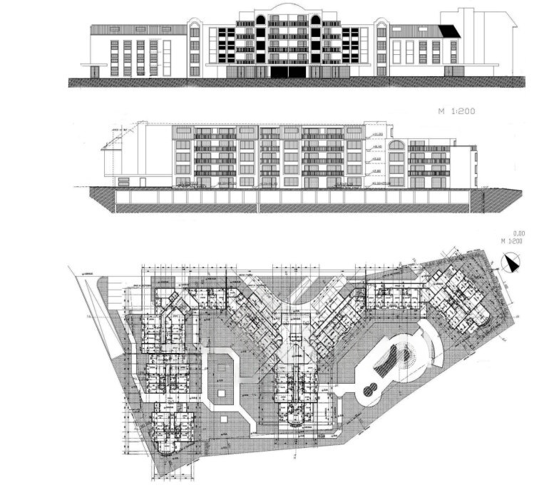
Строительство апарт-отеля на участке 8 999 кв.м на первой линии Черного моря.
Общая площадь отеля — 17 665 кв.м.

Расположение

Свети Влас, 33 км от аэропорта Бургас, 100 км от аэропорта Варна.

Цель проекта

Продажа и аренда апартаментов.

Стоимость проекта

  • Покупка участка — 1 500 000 евро
  • Строительство — 8 832 500 евро

Характеристики комплекса

  • 148 апартаментов (29 студий, 109 двухкомнатных, 10 люксов)
  • 120 паркомест
  • Ресторан, спа-центр, хозяйственные помещения

План реализации

  • Приобретение участка и строительство апарт-отеля
  • Срок реализации — до 2 лет
  • Создание 100 рабочих мест

Преимущества

  • Благоприятный климат и уникальная природа региона
  • Привлекательное туристическое направление
  • Высокий уровень обслуживания и комфорт для гостей

Заключение

Проект апарт-отеля в Свети Власе — это выгодная инвестиция благодаря высокому туристическому потенциалу региона, развитой инфраструктуре и благоприятным условиям для отдыха и оздоровления.

Объект
Гараж: Нет
Площадь и цена
Площадь: 17 665 м²
Цена продажи: €10 332 500,00 €
Планировка и состояние
Лифт: Нет
Меблирование: Нет
Инфраструктура рядом
Планировка
Графические материалы

Хотите обсудить сделку?

Наш эксперт готов предоставить дополнительную информацию и помочь с покупкой. Заполните форму, и мы свяжемся с вами в течение 10 минут

Наталья Чепурная
+359882799660




    Похожие предложения

    Нет в наличии
    Святи Влас, Болгария
    Продается кафе в комплексе Macon Residence
    Вторичное
    спальни:
    Площадь 202 м2
    160 000,00 €
    Нет в наличии
    Солнечный берег, Болгария
    Продается отель в центре Солнечного берега
    Вторичное
    спальни:
    Площадь 420 м2
    950 000,00 €
    Нет в наличии
    Святи Влас, Болгария
    Продажа офиса № 3 в комплексе Macon Residence
    Вторичное
    спальни:
    Площадь 49,2 м2
    54 120,00 €
    Нет в наличии
    Святи Влас, Болгария
    Продажа адвокатской конторы (офис) в комплексе Macon Residence
    Вторичное
    спальни:
    Площадь 114,84 м2
    100 000,00 €
    Нет в наличии
    Святи Влас, Болгария
    Продажа двух смежных офисных помещений с выходом во двор в комплексе Macon Residence
    Вторичное
    спальни:
    Площадь 113,23 м2
    100 000,00 €
    Нет в наличии
    Оризаре, Болгария
    Продается участок земли под строительство
    Вторичное
    спальни:
    Площадь 15,05 м2
    55 000,00 €

      Форма подачи объекта на продажу

      Заполните форму, и наш специалист свяжется с вами для уточнения всех деталей.

      Ваши контактные данные


      Информация о недвижимости

      Фото недвижимости (до 15 изображений)