Жилой комплекс Elite Nessebar
Elite Nessebar (Елит Несебр) — современный жилой дом без таксы за обслуживание, расположенный в быстро развивающемся районе Кокалу популярного города Несебр. Здание находится всего в 250 метрах от песчаного пляжа, в 50 метрах от продуктового магазина и недалеко от аквапарка Paradise. Район активно заселён круглый год и особенно востребован в летний сезон благодаря спокойной и уютной атмосфере. Рядом расположена автобусная остановка для городского и междугороднего транспорта.
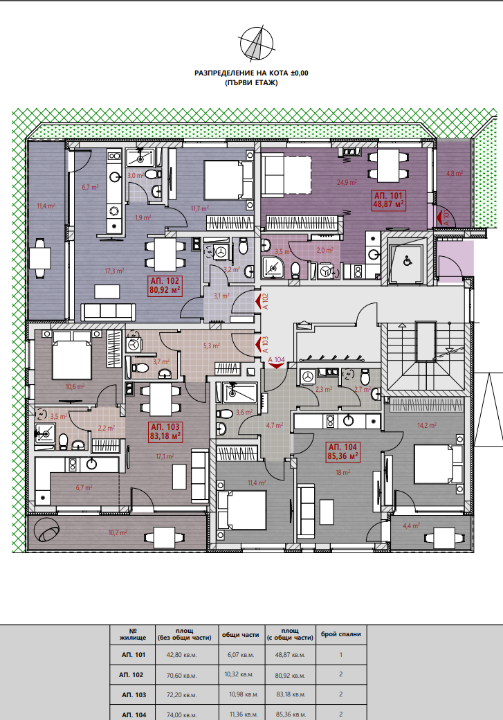
Здание состоит из пяти этажей и включает 20 квартир с продуманными и функциональными планировками: 13 трёхкомнатных и 7 двухкомнатных апартаментов, а также 20 кладовых помещений. В доме предусмотрен один вход и установлен высококачественный лифт.
Elite Nessebar предназначен для круглогодичного проживания и строится с соблюдением всех стандартов энергоэффективности. Здание будет утеплено, а окна выполнены из профильных систем Rehau. По желанию покупателей при заключении предварительного договора возможно установить электрический тёплый пол.
Для удобства жильцов предусмотрено 20 парковочных мест — по одному для каждой квартиры, с возможностью индивидуальной покупки. Кладовые помещения располагаются на подземном уровне, при желании можно приобрести дополнительные.
Все квартиры предлагаются с отделкой «под ключ», что обеспечивает готовность к немедленному заселению и комфортное проживание с первого дня.
Хотите обсудить сделку?
Наш эксперт готов предоставить дополнительную информацию и помочь с покупкой. Заполните форму, и мы свяжемся с вами в течение 10 минут

