Жилой дом СКАРАБЕЙ ПОМОРИЕ
Строительная компания «SCARABEY BUILD» с удовольствием представляет новый современный жилой проект, расположенный в одном из самых привлекательных приморских городов Болгарии — Поморие. Комплекс находится в спокойном и благоустроенном районе, всего в нескольких минутах от центра города. Рядом — пляж, футбольный стадион, медицинские центры и знаменитая грязелечебница, что делает локацию максимально комфортной для жизни и отдыха.
Современный дом с комфортом и видом
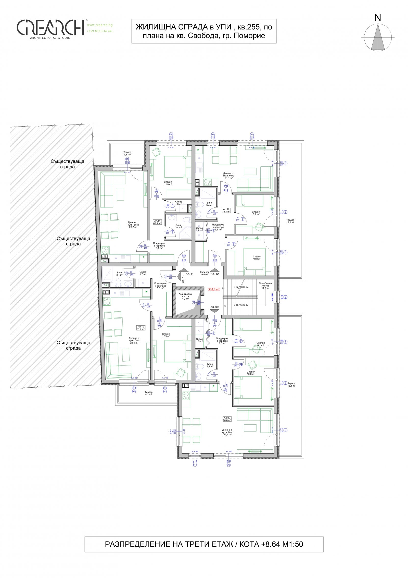
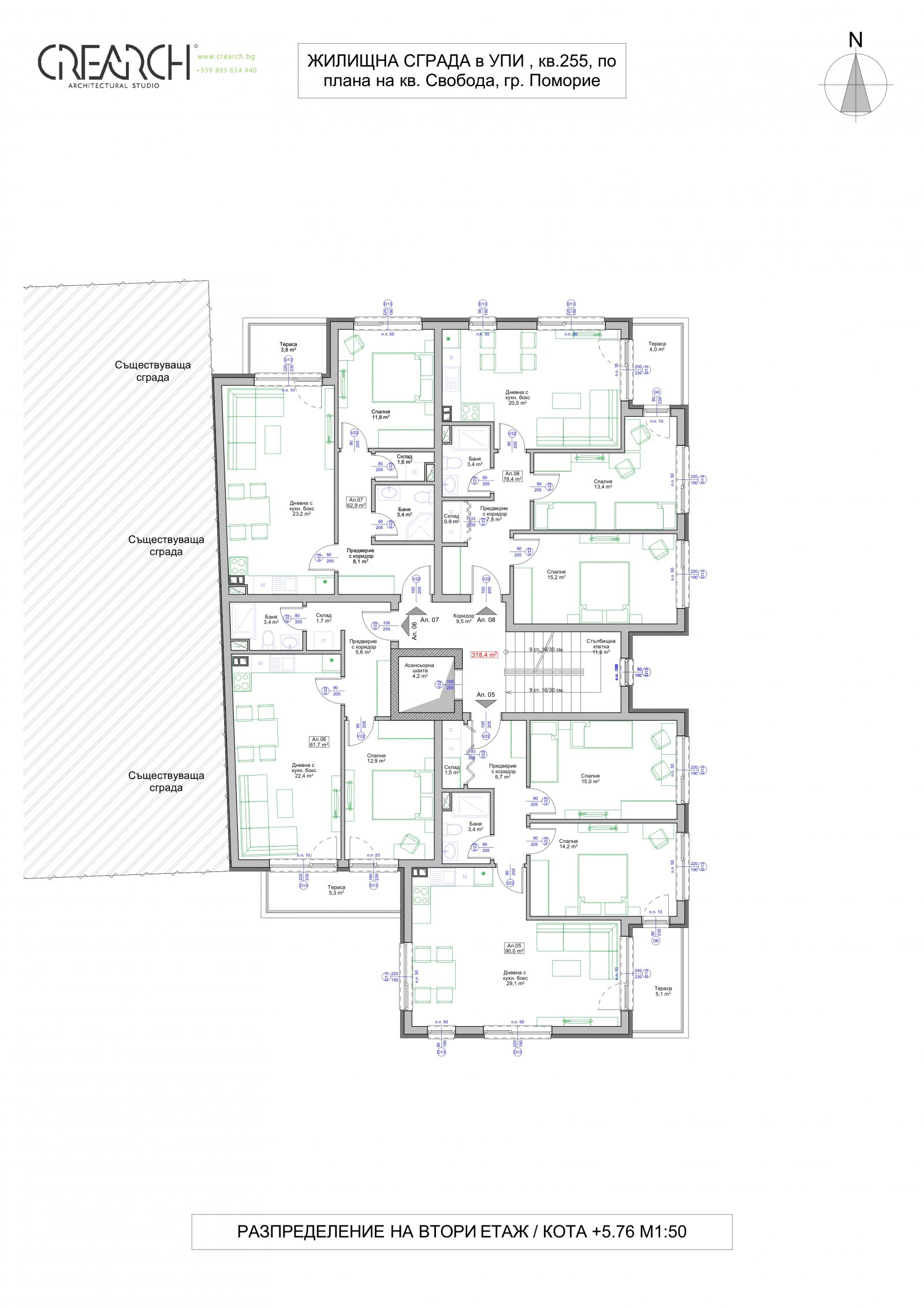
Здание будет выполнено по современным стандартам качества с акцентом на функциональность, энергоэффективность и эстетичный дизайн. Проект включает шесть этажей с различными типами квартир — с одной или двумя спальнями, а также парковочные места и гаражи на первом уровне.
Основные преимущества:
- Удобное расположение — на тихой улице с быстрым доступом к морю и центру города;
- Современная архитектура и энергоэффективные технологии;
- Лифт, стильные общие зоны и контролируемый доступ;
- Близость к лечебной грязелечебнице;
- Гибкие условия оплаты и возможность покупки на раннем этапе строительства.
Почему стоит выбрать Поморие?
Поморие — это город с уникальным климатом, природной красотой и известными лечебными ресурсами. Он идеально подходит как для постоянного проживания, так и для инвестиций или отдыха у моря. Здесь гармонично сочетаются спокойствие, инфраструктура и высокий уровень качества жизни.
Свяжитесь с нами, чтобы получить подробную информацию о планировках, ценах и условиях покупки. Станьте частью нового современного жилого проекта в прекрасном городе Поморие!
Хотите обсудить сделку?
Наш эксперт готов предоставить дополнительную информацию и помочь с покупкой. Заполните форму, и мы свяжемся с вами в течение 10 минут


